






Model: QDY 10~75t, YZ 100~800t
Load Capacity: 10~800t, customized
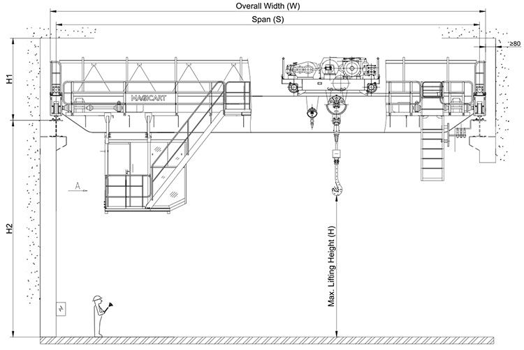
Span: 15~110m, customized
Lifting Height: 8~110m, customized
Class: standard A5 / A6 / A7 / A8
Powered via bus bar system
Metallurgical cranes are mainly suitable for special cranes for metal smelting, rolling and thermal processing.

Double sets of independent action brakes.

High temperature resistant cable.

| Cap (t) | 5 | 10 | 16 | 20 | 32 | 50 | 
| Span (m) | 10.5-31.5 | 10.5-31.5 | 10.5-31.5 | 10.5-31.5 | 13.5-31.5 | 13.5-31.5 | 
| Lifting Height (m) | 16 | 20 | 16 | 12 | 16 | 12 | 
| Max. Wheel Load (KN) | 143 | 181 | 229 | 253 | 354 | 481 | 
| Total Power (KW) | 27.1 | 45.5 | 59.7 | 79.7 | 90.5 | 130.5 | 
| Hositing Speed (m/min) | 13 | 12.9 | 10.9 | 9.8 | 7.7 | 6.3 | 
| Crab Travelling Speed (m/min) | 39.5 | 35.2 | 31 | 37 | 37.6 | 31.8 | 
| Crane Travelling Speed(m/min) | 95.7 | 93.7 | 90.4 | 90.9 | 77 | 77.8 | 
| Power Sourse | Three phase.AC 380V 50HZ | |||||

Technical Support | Customized Design | Project Budget | Offer for Bidding | Contracting | Fast Services...
Call +86 373 5853707 +86 17337369287to enjoy a good experience here!
Our Sales Engineer will contact with you within 12 hours!
Copyright © 2025 Xinxiang MAGICART Cranes CO., LTD.